Edd and Fernie are getting married
Sutton Upon Derwent Hall Venue

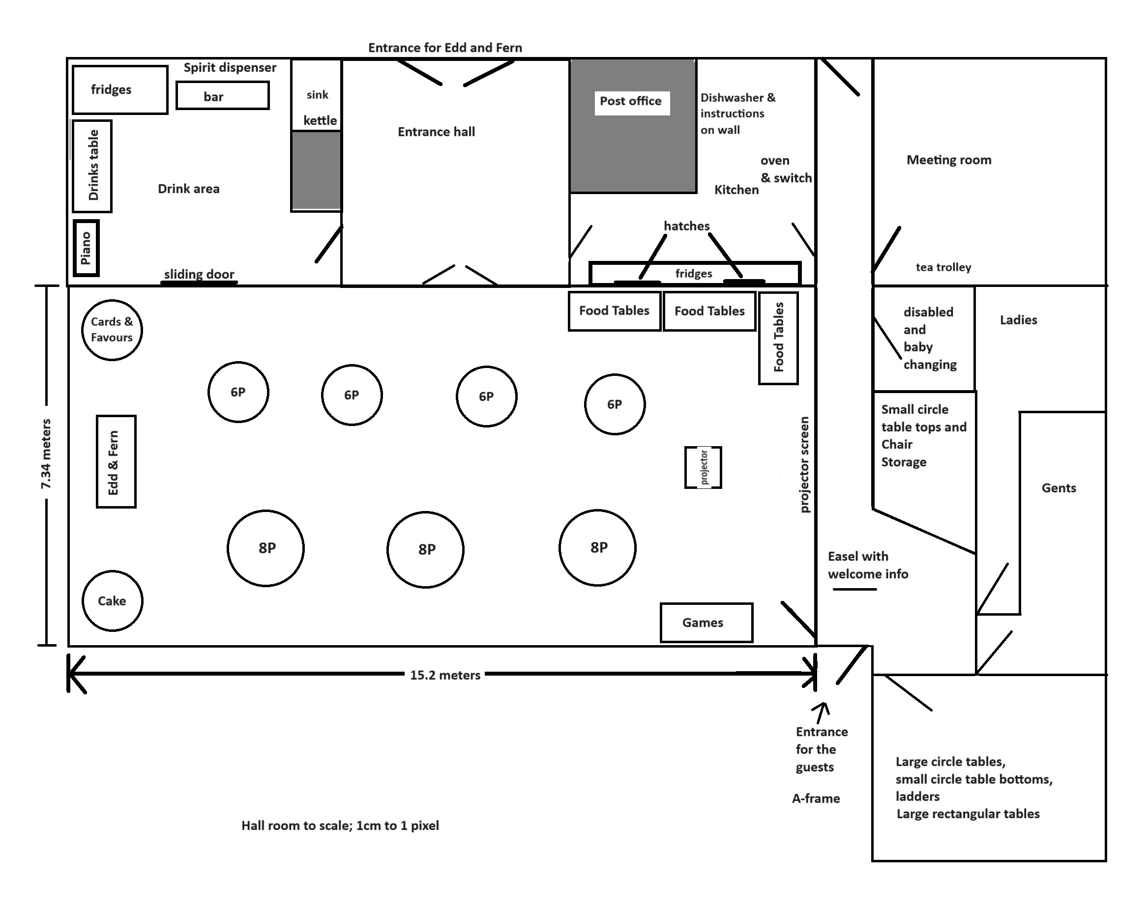
Birds-eye view map of the Venue


Birds-eye view map with layout


Google view of the venue, including the car park


Hall pictures







Kitchen pictures



Meeting Room


Bar area